Trilocale in vendita

Peschiera Borromeo, Via della Resistenza - Mezzate
€ 195.000
3 locali 3 locali
84 Mq 84 Mq
1 bagno 1 bagno

Trilocale in vendita

Peschiera Borromeo, Via della Resistenza - Mezzate

Descrizione annuncio

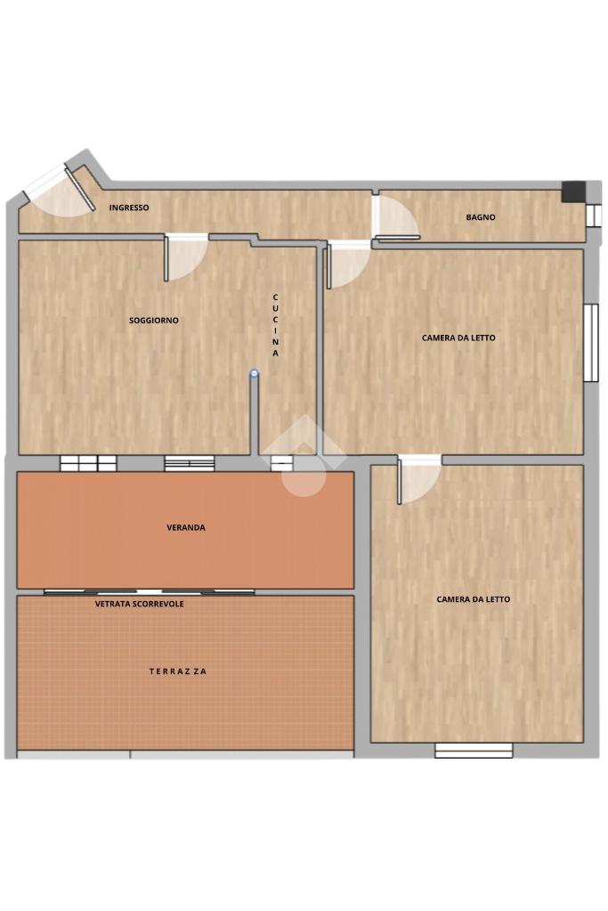
L'appartamento si trova al primo piano di un edificio risalente al 1970 senza ascensore. All'ingresso, un corridoio ci conduce direttamente al soggiorno con la cucina a vista. Dal soggiorno si accede a una veranda che si apre attraverso una vetrata scorrevole, su un ampio terrazzo esposto a Ovest, ideale per godere di tramonti mozzafiato e serate estive all'aperto. Le due camere da letto sono entrambe luminose e spaziose. Il bagno è finestrato e dotato di una comoda doccia. La pavimentazione in parquet è presente in tutti gli ambienti, creando un'atmosfera raffinata ed accogliente.

La zona presenta un’ampia varietà di spazi verdi, mezzi pubblici (ATM 901/902), un minimarket e scuole, tutti facilmente accessibili. La pista ciclabile consente di raggiungere in sicurezza i vari quartieri di Peschiera Borromeo, l'idroscalo e il capolinea delle metropolitane M3 di San Donato Milanese e M4 di Linate.

Abbiamo creato dei rendering per illustrare diverse opzioni di design.

Per ulteriori informazioni e visite, non esitate a contattare Tecnocasa di Peschiera Borromeo. Il nostro ufficio si trova in Piazza Riccardo Lombardi n. 1 (angolo via Dante Alighieri). I nostri orari sono: da lunedì a venerdì: 8.30/12.30 - 14.00/20.00 - sabato: 9.00/13.00

Mostra tutto

Nelle vicinanze

Trasporto pubblico Trasporto pubblico
Via Resistenza - Via Ponchielli (Mezzate)
Via Resistenza - Via Ponchielli (Mezzate)
20 m
Via Resistenza - Via Santa Maria (Mezzate)
Via Resistenza - Via Santa Maria (Mezzate)
140 m
Ricariche auto elettriche Ricariche auto elettriche
Pittarello Peschiera Borromeo
1,8 Km
A2A Aeroporto di Milano Linate - Arrivi
2,8 Km
Aeroporto di Milano Linate - P2
2,9 Km
Scuole Scuole
Scuole
920 m
Scuola Primaria Don Milani
930 m
scuola dell'infanzia Gianni Rodari
2,5 Km
Scuola elementare Giuseppe Mazzini
2,6 Km
Scuola Primaria Antichi Fontanili
2,7 Km
Farmacia Farmacia
Merlino
540 m
Colli
1,6 Km
Farmacia
2,5 Km
Farmacia San Riccardo
2,7 Km
Ospedali Ospedali
Centro Cardiologico Monzino
2,6 Km
Supermercati Supermercati
Coop
1,6 Km
Ipercoop
1,8 Km
Lidl
2,5 Km
Carrefour Express
2,7 Km
UNES
2,7 Km
Negozi Negozi
Sala
1,4 Km
Panificio 2 Giugno
1,6 Km
Negozi
2,5 Km
Yamamay
2,6 Km
Calzedonia
2,6 Km
Bar Bar
La fiorita
560 m
Ca' matta
1,7 Km
Papataso
2,7 Km
Ristoranti Ristoranti
H2O
30 m
Gli artigiani della pizza 2
40 m
Asina Luna
120 m
La Giovanna
440 m
Antica trattoria di Canzo
640 m
Mostra tutto

Caratteristiche

Rif.:
61143375
Piano:
1 di 2 (Piano basso)
Terrazzi:
1
Camere da letto:
2
Arredamento:
Assente
Condizionamento:
Assente
Mostra tutto
Prezzo Prezzo
€ 195.000
Rata mutuo Rata mutuo
€ 905 / mese
Spese annue Spese annue
€ 1.100
Proponi il tuo prezzoProponi il tuo prezzo

Classe Energetica

G
G
G
G
G
G
G
G
G
EP globale non rinnovabile:
185.15 kW h/m² anno
EP globale rinnovabile:
0.98 kW h/m² anno
EP invernale del fabbricato:
EP estiva del fabbricato:
Anno di costruzione:
1970
Riscaldamento:
Centralizzato
Tipo impianto:
A radiatori
Tipo alimentazione:
Metano

Ti interessa visionare l'immobile?

Fissa un appuntamento  Fissa un appuntamento

Richiedi informazioni

Clicca su Leggi per aprire l'informativa
* Questi campi sono obbligatori

Calcola il tuo mutuo

Semplice e senza impegno
Anticipo

( % )
Mutuo

( % )

pochi semplici passi

inserisci i tuoi dati
Questionario completato
Grazie per aver richiesto un appuntamento senza impegno con un nostro Consulente del Credito e Assicurativo.

Hai inserito correttamente tutti i dati necessari e a breve riceverai una e-mail con un link da convalidare per inviare i tuoi dati.
Affiliato
Studio Peschiera Borromeo Snc
P.zza Riccardo Lombardi, 1 20068 Peschiera Borromeo (MI)

Il nostro staff


  • Fausto Costante Arfini
    Affiliato

  • Paola Mosca
    Coordinatrice

  • Michel Freri
    Responsabile
P.zza Riccardo Lombardi, 1 20068 Peschiera Borromeo (MI)
Zona: Peschiera Borromeo - Bettola - Bellaria - Zeloforamagno - Linate - Mezzate
Mostra su mappa
Orari: lunedì - venerdì 9:00 orario continuato 20:00 - sabato 9:30/12:30 - pomeriggio su appuntamento
Affiliato
Studio Peschiera Borromeo Snc
P.zza Riccardo Lombardi, 1 20068 Peschiera Borromeo (MI)

2026 Tecnocasa Franchising S.p.A. - P. IVA 08365160152 - Via Monte Bianco 60/A 20089 Rozzano (MI). Ogni agenzia ha un proprio titolare ed è autonoma. Privacy policy | Policy utilizzo | Cookie policy